Bousbecque – Le Manoir de la Lys
- Date d’achèvement: mai 2020
- Client: Boyeldieu Dehaene
- Description: Construction de 48 logements collectifs (+1 sous-sol parking)
Restructuration d’une bâtisse en 7 logements collectifs
A propos du projet
Lieu de l’opération: 75 Rue de Wervicq, Bousbecque
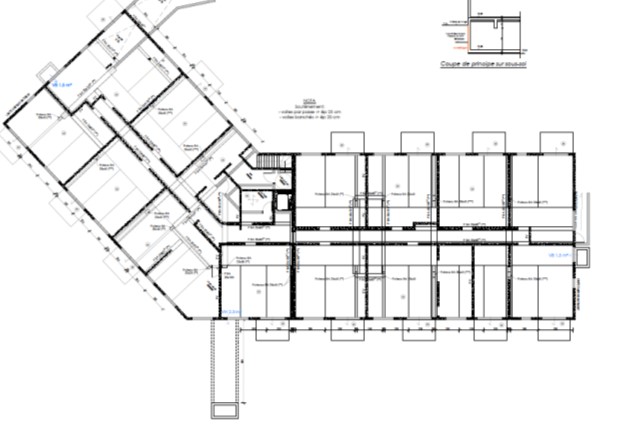
Maître d’ouvrage : Bouygues immobilier
Surface SHON : 3904 m²/ SHAB = 3123 m²
Type de missions : mission structure maîtrise d’œuvre: (APS) – (APD) – (PRO) – (DCE)
Montant de l’opération : 5.1 M euros
Spécificités de l’opération :
Fondations sur pieux, plancher bas sous-sol cuvelé et calculé avec une sous-pression d’eau de 1T/m².
Attribution GO: Nord construction nouvelles
Certifications environnementales et labels :
label énergétique BBC RT 2012
Projets similaires
Puteaux - Ouest Village
étude de structure MOE
La Madeleine - Square Louise
étude de structure MOE
Lesquin – Résidence Tertio
étude de structure MOE


