Tressin – 21 logements – MOE structure

  • étude PC : juillet 2023
  • Architecte : cabinet BSA
  • Description: Construction de 21 logements: façade en ossature bois pour respect de la RE2020.

 

A propos du projet

Lieu de l’opération: Tressin

Description succincte de l’opération :

Construction de 21 logements 

Maître d’ouvrage : LMH

Surface totale:  m²

Type de missions : MOE structure

Montant de l’opération :  M euros

 

 

Spécificités de l’opération :

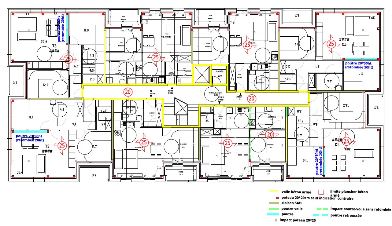
ossature béton armé de type plancher-dalle sur poteaux, voiles béton uniquement pour la cage d’escalier, ascenseur et circulations. 

cloisons SAD entre logements.

façade bois rapporté non porteuse selon DTU 31.4 « façades à ossature bois »

 

Label environnemental: 

bâtiment passif

Projets similaires

Lesquin – Résidence 57 logements

étude de structure MOE 

Saint-Saulve - Les 4 jardins - RSS: Construction de 123 logements avec locaux communs (tels que piscine,
Réfectoire, salon de coiffure, espace fitness…)

étude de structure MOE 

Lille - 38 logements, parking en Rdc- Lill'O2

étude de structure MOE

Contactez nous

61 rue de Roubaix, 59200 Tourcoing

06 67 78 01 60

aclaeyman@claeymanstructure.fr